Unikt hus på en unik plats till SALU!

Föreställ dig...

...att vakna upp i ditt eget medeltida ”slott”, omgiven av historia och samtidigt njuta av modern bekvämlighet. Det är precis vad som väntar dig i detta unika 1200-talshus i hjärtat av Grad Grobnik!

 

Drömmer du om ett hem som andas historia men ändå erbjuder all tänkbar komfort? Då har du hittat rätt! Detta charmiga stenhus på 81 m² som har genomgått en elegant renovering som bevarar dess historiska själ samtidigt som den ger dig ett modernt och bekvämt boende.

 

Detta är mer än bara ett hem - det är en livsstil, en chans att äga en bit av historien och samtidigt leva ett modernt liv fullt av äventyr och upplevelser. Missa inte denna unika chans att göra din dröm om ett liv i Kroatien till verklighet!       

 

Stor potential för uthyrning:

För den som inte kommer använda huset som permanent bostad, finns det stor potential  för uthyrning. 

 

Beläget granne med det medeltida slottet Kaštel, är huset perfekt för att dra nytta av de många kulturella evenemang, festivaler och filminspelningar som regelbundet äger rum där. 

 

Dessutom ligger Automotodrom Grobnik, en populär motorbana för både tävlingar och träningsläger, bara 5 km bort. Denna närhet till både historiska och moderna attraktioner gör huset till ett attraktivt alternativ för besökare året runt.

Tänk dig... 

...att laga middag i ditt fullt utrustade kök medan du blickar ut över hela Adriatiska havet, eller när du öppnar ytterdörren och möts av ett av Kroatiens mest ikoniska slott.

 

Eller att koppla av i ditt rymliga vardagsrum, omgiven av metertjocka väggar som har bevittnat århundraden av historia. Med två mysiga sovrum har du gott om plats för familj och gäster att dela denna unika upplevelse. 

Utomhus... 

..det är inte bara inomhus som detta hem imponerar. Stig ut på din egen terrass och låt dig svepas med av den hisnande utsikten över Kvarnerbukten med dess öar. Föreställ dig att sitta här med ett glas vin, medan solen går ner och Opatias ljus börjar glittra i fjärran. Det är en upplevelse som får vardagen att kännas som en ständig semester! 

Läget... 

Här bor du granne med historia och kultur, med otaliga festivaler, filminspelningar och evenemang precis utanför dörren. Samtidigt är du bara en kort bilresa från allt från internationell flygplats (20 min) stränder till skidbackar, från pulserande stadsliv till fridfull natur.

 

Med Rijeka C bara 10 km bort och andra viktiga platser som Crikvenica (33 km), Opatia (25 km), Kostrena (14 km), Platak (20 km), Grobnik Racing Track (12 km) inom räckhåll, kan du enkelt ägna dig åt olika aktiviteter som vandring, cykling eller vinterskidåkning.

 

För dem som är intresserade av att ge sig ut på dagsturer, ligger Venedig bara 240 km bort medan Trieste ligger 85 km bort. För grottentusiaster ligger Postojna i Slovenien bara 76 km bort.  

Bonus...

 

Husets källare erbjuder en unik möjlighet att kombinera historia med framtid. De tre rummen med ursprungliga stenvalv ger en autentisk atmosfär och kan omvandlas till en separat lägenhet, perfekt för gäster eller uthyrning.

 

Stenvalven skapar en distinkt känsla som är svår att återskapa i moderna byggnader, och den naturliga svalkan gör källaren idealisk för varma kroatiska somrar.

 

Utrymmet kan även anpassas till:

 

- Vinkällare

- Privat spa

- Konstnärsateljé

 

Genom att renovera källaren ökar du bostadens värde och skapar möjligheter för extra inkomst genom uthyrning till turister och besökare av kulturella aktiviteter vid det närliggande slottet.  

Följ med på en rundtur... 

Fakta om huset...

Försäljningen kommer att göras med hjälp av lokal auktoriserad husmäklare.

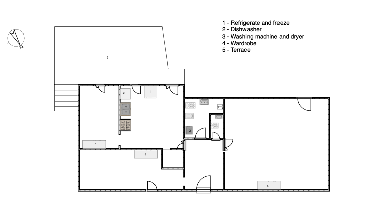
  • Stenhus ett plan (81 m2) med källare (81 m2 oinredd)

  • 3 rum och kök

  • Duschrum med wc

  • Separat wc

  • Terass 29 m2 i syd/väst läge med havsutsikt

  • Trädgård 175 m2

Utrustning:

  • Kombinerad tvättmaskin med torktumlare

  • Diskmaskin

  • Kyl och frys

  • 2 st luftvärmepumpar/AC Mitsubichi, installerade 2019.

  • Vedkamin

  • Fiber Internet

Fler bilder...  

Utanför och i närheten... 

För mer information eller bokning av visning,

vänligen fyll i e-post formuläret.

Namn *
E-post *
Meddelande *